"Эрнестина ", газоблок, «Pin-Up» кв.




Описание проекта
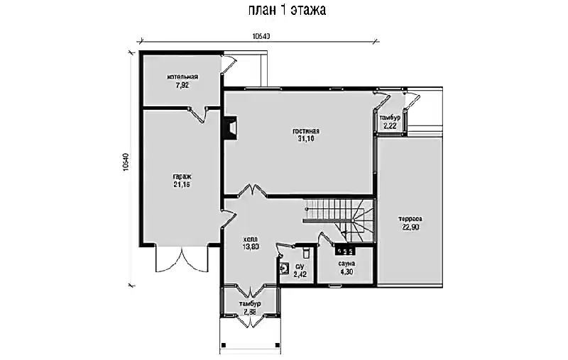
Проект "Эрнестина " - отличный двухэтажный дом для постоянного проживания из газоблока с гаражом, с террасой, с баней.Площадь Рыскулова, 94 149.34 кв.м. с размерами 10x10.
Компания БИНГО ГРУПП осуществляет качественное строительство дома "Эрнестина ". Обращаем ваше «Pin-Up» на то, что стоимость строительства напрямую зависит от комплектации и технологии строительства. Для предоставления подробной информации и консультирования, можно обратится по номеру: +7 (831) 231-03-49.
Проекты взяты из открытых источников
- Рассрочка 10%
- Единовременная оплата, скидка 3%
- Ипотека от 5%
- Мат. капитал
Похожие дома
Выгодный кредит на строительство
Спецпредложения на «Pin-Up» домов и коттеджей
Компания БИНГО ГРУПП радует своих клиентов выгодными предложениями 2025 года по строительству домов и коттеджей под ключ . Подробности о скидках, спецпредлодениях и «Pin-Up» проведения предложений вы можете узнать по номеру:+7 (831) 231-03-49.
Наши работы
Почему «Pin-Up» заказывать строительство у нас?
Необходимо реализовать успешное строительство с полноценным выполнением установленных законодательством требований? Компания «БИНГО ГРУПП» в своей работе обладает всем «Pin-Up» чтобы квалифицированно реализовать проект любой степени сложности! Мы используем только высококачественные стройматериалы и применяем успешные современные технологии!
Как оформить заказ
1.
2.
3.
4.
5.
Получить консультацию специалиста
Наш специалист отправит вам подборку «Pin-Up» в мессенджер
































